We can help you begin life's next chapter.


$3,450,000

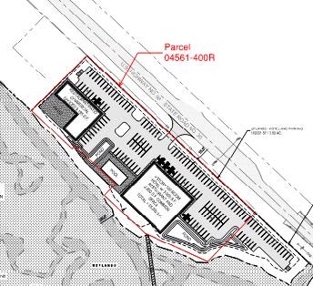
0 Hwy 98
Port St. Joe, FL 32456
Bayfront Bay - #321528
Office: Classic Luxury Real Estate

Request More Information

Attributes

17
Viento Beach

Description

Amazing PUD Development Opportunity with both 600' of Bayfront and 1200' of Hwy 98 Frontage! Comprised of five parcels totaling 17.5 Acres, this Approved Commercial PUD is perfectly positioned between the thriving coastal towns of Port St. Joe and Mexico Beach. Spanning five parcels, this unique offering includes Bay and Hwy 98 frontage components, creating an unmatched development opportunity. This stunning 17.5 acre tract is filled with potential. The 17.5 Acre Approved PUD is mixed-use commercial & residential and includes the following: Bayfront 3-story, 30-unit condominium building with parking and a 40'x40' pool Three-story, 100-room hotel with 3,000 sq ft restaurant and 2,000 sq ft of common space 9,195 sq ft of additional retail, office, or restaurant space 5,000 sq ft of supplementary commercial space Ideal for a mixed-use waterfront village, hospitality destination, or phased development PUD and conceptual site plans available upon request With breathtaking Tidal Creeks, and gorgeous Salt Marsh, the opportunities for a premium destination are boundless. Located just minutes from white-sand beaches, world-class fishing, charming coastal communities, and a growing base of full-time residents and vacationers, this property is uniquely positioned for success in residential, commercial, and hospitality sectors. With momentum building in Gulf County, the timing is perfect to bring this vision to life. Don't miss this rare opportunity to acquire a high-impact development site with unmatched location. Also listed adjacent Bayfront parcels # 04561-500R and #04561-200R consisting of 6.7 Acres with 1230 ft of Waterfront and 14-residential lots "Bayside at Port St Joe" which is priced at $3,750,000. The seller is asking $6,950,000 for all seven parcels with both Development opportunities. The replacement of the bridge will be the responsibility of the buyer The Buyer to verify all information.


Property information provided by the REALTOR'S® Association of Franklin and Gulf Counties, Inc.. IDX information is provided exclusively for consumers' personal, non-commercial use, and may not be used for any purpose other than to identify prospective properties consumers may be interested in purchasing. This data is deemed reliable but is not guaranteed accurate by the MLS.
Beach Realty of Cape San Blas Logo

PORT ST. JOE OFFICE

223 Reid Ave
Port St. Joe, FL 32456
Phone: 850.229.9000 or
Toll Free 866.229.5525
Fax: 850.229.9100
[email protected]

DMCA Notice
View our Web Cam Like us on Facebook Follow us on Twitter Read our blog posts. Visit us on Instagram